- 暂时还没有文章
锅炉煤粉取样器装置产品结构及技术说明
锅炉煤粉取样器装置产品结构及技术说明,煤粉取样器也称煤粉取样装置,煤粉取样器用于电厂(站)锅炉尾部烟气煤粉的等速连续取样,使煤粉含碳量得到准确的检测,为锅炉热效率的科学计算提供可靠依据。
煤粉可燃物含量是衡量锅炉燃烧状况的重要指标,煤粉取样分为两类,一是为定期开展的热效率试验而进行的取样工作,二是火电厂日常煤粉取样和分析工作,需在煤粉炉尾部烟道的适宜部位安装1套或数套煤粉取样用固定装置。
火电厂常用的撞击式和旋风分离式煤粉取样装置存在:设备技术水平低,安装、操作复杂,灰样代表性差、管路易堵塞,取样周期长、灰样量不足等缺陷,以及火电厂烟道负压和烟气浓度等因素给取样工作带来诸多困难,不能满足用户的要求。
锅炉目的在于针对现有技术的缺陷和不足,提供一种结构简单、设计合理、使用方便的煤粉取样装置。
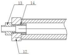
锅炉煤粉取样器装置技术方案是:它包含取样管、取样瓶、旋风分离器、连接活接头、压缩空气接管、压缩空气阀、压缩空气调压阀、射气抽气器、吹扫阀、射气管、取样阀、压盖、密封连接头、高温填料、保温层;压缩空气接管上设置有压缩空气阀和压缩空气调压阀,压缩空气调压阀通过管路连接有射气抽气器,射气抽气器与射气管连接,射气管上设置有吹扫阀;射气抽气器通过管路和连接活接头与旋风分离器连接,旋风分离器的下端连接有取样瓶,旋风分离器的一侧通过管路与取样管连接,旋风分离器与取样管之间设置有取样阀;取样管的一端设置有压盖,压盖一端连接有密封连接头,压盖与密封连接头之间设置有高温填料;取样管和射气管的侧壁设置有保温层。
取样管与取样阀的管路密封焊接。取样管、取样瓶、压缩空气接管和射气管采用不锈钢制成。无需另配密封件,安装密封,保温层15防止取样后结露堵塞管道;煤粉取样过程中,所有阀门全部打开,当压缩空气从出气管喷出时,其射流作用必然导致与取样阀连通的管道处出现负压,管内气体被带出。旋风分离器和其底部的取样瓶是封闭连接,能与外部连接的唯一进口只有取样管。所以负压的出现促使烟道中的气、灰混合物沿取样管进入取样装置,气、灰混合物在分离器中被分离,煤粉进入取样瓶,而气体从分离器的上部出口被压缩空气带出;在煤粉取样前和取样后,打开吹扫残留在管道中的煤粉,以防取样管被煤粉堵塞,并保证取样准确。
锅炉煤粉取样器产生的有益效果为:煤粉取样装置,安装方便,方便取样操作,灰样代表性好、管路不易堵塞,取样时间短、灰样量充足,锅炉煤粉取样器 具有结构简单、设置合理、制作成本低等优点。
附图说明
图1是锅炉煤粉取样器结构图;
图2是图1中A部放大图。
附图标记说明:
取样管1、取样瓶2、旋风分离器3、连接活接头4、压缩空气接管5、压缩空气阀6、压缩空气调压阀7、射气抽气器8、吹扫阀9、射气管10、取样阀11、压盖12、密封连接头13、高温填料14、保温层15。
32070602010017