- 暂时还没有文章
电站电厂锅炉飞灰等速取样器装置结构应用分析
火力发电厂燃煤锅炉飞灰含碳量是衡量锅炉运行及燃烧效率的重要指标,合户飞灰含碳量,有利于提高锅炉和发电机组运行的经济性,降低发电成本,还有禾某灰的综合利用。
目前,虽然各种飞灰含碳量在线监测分析仪器被大力推行,但是采用实验室尔重的离线分析方法仍然处于不可取代的地位。在现有离线分析方法中,各电厂童击式或积落式飞灰取样方法。由于这种方法只能捕捉颗粒度较大的飞灰,难比位度较小的飞灰,因而使采集到的飞灰样品缺乏代表性,造成无法进行锅炉飞佳确分析。
一种电站锅炉飞灰等速取样器装置,该飞灰取样器装置克童击式和积落式取样器装置的不足,为准确地检测飞灰含碳量、指导机组运行调整涡炉热效率提供了可靠依据。
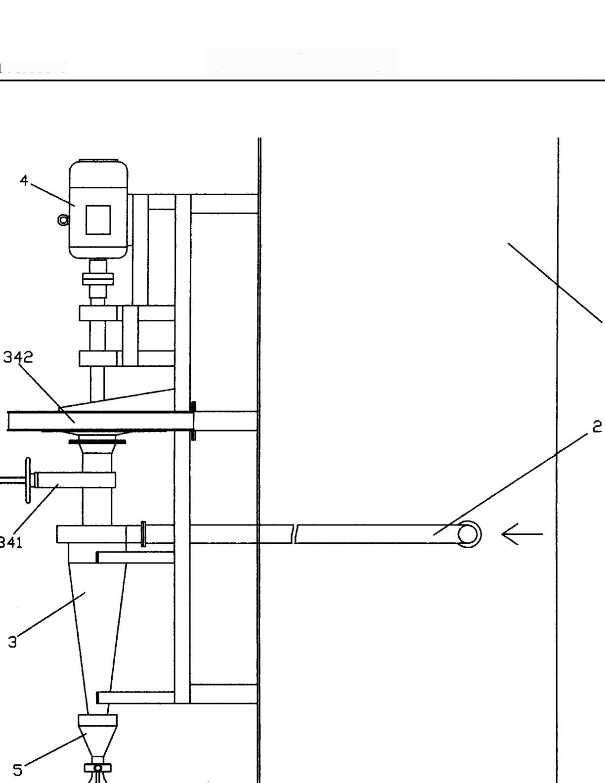
为实现上述目的,电站锅炉飞灰等速取样器装置包括抽气机、分离;其中,分离器轴线垂直设置,其上端出气口经管道与抽气机进气口相连通,其下与取样瓶相接;取样管水平布置,其一端沿分离器切线接入分离器上端,另一端们中,并且取样管位于烟道中的进气口朝向烟气来的方向设置;抽气机排气口经到锅炉烟道,并由此形成由烟道-取样管-分离器-抽气机-烟道构成的烟气沉进一步,所述顶推机构包括固定板和驱动螺栓,固定板固定设置在所述托板导轨上,驱动螺栓穿过固定板上的螺纹孔,顶推在所述托板底部,松紧驱动螺档全顶推下驱动托板上、下移动。
电站锅炉飞灰等速取样器装置在抽气机的作用下,将烟道中的炬管抽入分离器,通过分离器得到烟气中的飞灰样品。为了节能和降低成本,射水抽气器之间以直管道连通,抽气机的排气口与烟道连通,有效降低了抽气机的负载,只负压便可以将烟道中的烟气抽入到分离器中,同时使得烟气在分离器中有一定的将烟气中的飞灰充分分离出来。取样管的直径大小可以根据实际需要进行选取取样管搭配不同负载的抽气机。调整取样管和相应的抽气机可以提高取样效率分离器与抽气机之间的管道上设置了烟气流量调节阀门,可以控制阀门的开度营进气口与烟道二者气流速度相等,因而取样管进气口截面处的烟气量全部进入证了取样精度。
图1为电站锅炉飞灰等速取样器装置的结构示意图;
图2为电站锅炉飞灰等速取样器装置的托架结构示意图。
32070602010017